Logo Castellón 2023 (Apresentação (169))

Projetos perfeitamente Integrados. Obras sem dor de cabeça...

100+

Projetos compatibilizados

20%

Economia média

98%

Satisfação do Cliente



Compatibilizamos. Otimizamos. Prevenimos problemas.

Nossa expertise técnica garante que todos os sistemas do seu projeto funcionem em perfeita hamonia

Compatibilização entre todas as disciplinas

Arquitetura, estrutura, elétrica, hidráulica e demais sistemas integrados.

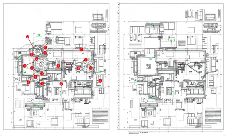
Detecção de interferências antes da obra

Identificamos e resolvemos conflitos no projeto, evitando  supresas no canteiro.

Entrega de modelo final ajustado

Projeto completo, revisado e pronto para execução sem intercorrências.

Suporte técnico para obra

Acompanhamento e esclarecimentos durtante todas a execução do projeto

Lorem ipsum dolor sit amet, consectetur adipiscing elit. Ut elit tellus, luctus nec ullamcorper mattis, pulvinar dapibus leo.



Porque compatibilizar com a Castellón?

Economize até 20%

Redução singnificativa de custos com retrabalhos, alterações e atrasos na obra.

Ganhe tempo em obra

Execução mais fluida e rápida com projetos já compatibilizados e sem conflitos

Confiança da Equipe

Maior segurança técnica para engenheiros, mestres e operários durante a execução

Evite conflitos entre as disciplinas

Eliminação de interferências que causam atrasos e aumentam custos operacionais.

Valorização técnica do projeto

Projetos mais robustos e confiáveis, agregando valor ao empreendimento

Suporte especializado

Equipe técnica experiente para suporte durante toda a execução da obra



Simples, Técnico e sem complicações.

Nosso processo otimizado garante resultados eficientes em prazos reduzidos

  • Etapa 1

Você nos envia o projeto

 

Recebemos todos os arquivos das disciplinas envolvidas no projeto.

  • Etapa 2

Analisamos todas a disciplinas

Nossa equipe ténica realiza a análise detalhada identificando as interferências.

  • Etapa 3

Entregamos o projeto compatibilizado

 

Projeto final com  todas as intercorrências resolvidas e documentadas.

  • Etapa 4

Suporte durante a execução

 

Acompanhamento técnico para esclarecer dúvidas durante a obra.



Sobre a Castellón Projetos

Fundada com o propósito de revolucionar a compatibilização de projetos no Brasil

Nossa História

A Castellón Projetos nasceu da experiência de mais de 15 anos no mercado de construção civil, onde nossos fundadores identificaram que a maioria dos problemas e retrabalhos em obras poderiam ser evitados com uma compatibilização adequada na fase de projeto. Com expertise técnica sólida e visão inovadora, criamos uma metodologia própria que garante a integração perfeita entre todas as disciplinas de um projeto.

Nossos Fundadores

afc7058e-f504-4e5f-880e-a5023b3bdeca

Marcos Carlos

Projetista | Sócio-Fundador

15 + anos de experiência em compatibilização e gestão de projetos de marcenaria especial.

{"aigc_info":{"aigc_label_type":0,"source_info":"dreamina"},"data":{"os":"web","product":"dreamina","exportType":"generation","pictureId":"0"},"trace_info":{"originItemId":"7547380344668851517"}}

Marcela Pereira

Designer de Interiores| Sócia-Fundadora

Especialista em projetos 3D complementares e coordenação multidisciplinar



Quem já contratou, não constrói sem compatibilizar.

“Depois da compatibilização com a Castellón, nossa obra fluiu como nunca. Economizamos tempo, dinheiro e paciência.”

Denise Moraes

Arquiteta

“A diferença é notável. Antes tínhamos retrabalho constante, agora temos projetos que realmente funcionam na prática.”

Akmx Engenharia e Arquitetura

“O investimento se paga rapidamente. Evitamos problemas que custariam muito mais para resolver durante a obra.”

Engetrail Engenharia



Investimento que se paga antes da obra começar...

Escolha o plano ideal para o seu projeto

Básico

Compatibilização de até 3 disciplinas

SOB CONSULTA
  • Análise de interferências do layout recebido
  • Relatório técnico detalhado
  • Projeto compatibilizado
  • Suporte por email

Profissional

Compatibilização completa + suporte técnico

SOB CONSULTA
  • Todas as disciplinas incluídas
  • Relatório executivo completo
  • Suporte técnico por telefone
  • Acompanhamento durante obra
  • Revisões incluídas

Sob Medida

Projetos grandes ou personalizados

CONSULTAR
  • Análise personalizada
  • Cronograma flexível
  • Suporte presencial
  • Relatórios com detalhamento



Você projeta a gente garante que funciona...

Especialistas em compatibilização de projetos, garantindo obras mais eficientes e econômicas.

Castellón Projetos © 2025. Todos os direitos reservados.

Contato

(11) 91688-9225
contato@castellonprojetos.com.br
@castellonprojetos

Serviços

Compatibilização de Projetos

Análise de Interferências

Modelagem em Autocad

Suporte Técnico

CNPJ: 05.137.517/0001-40| São Paulo – SP

.